10427 Stony Oak St_001
4 Alturas Symbol_Tan

The Bruneau

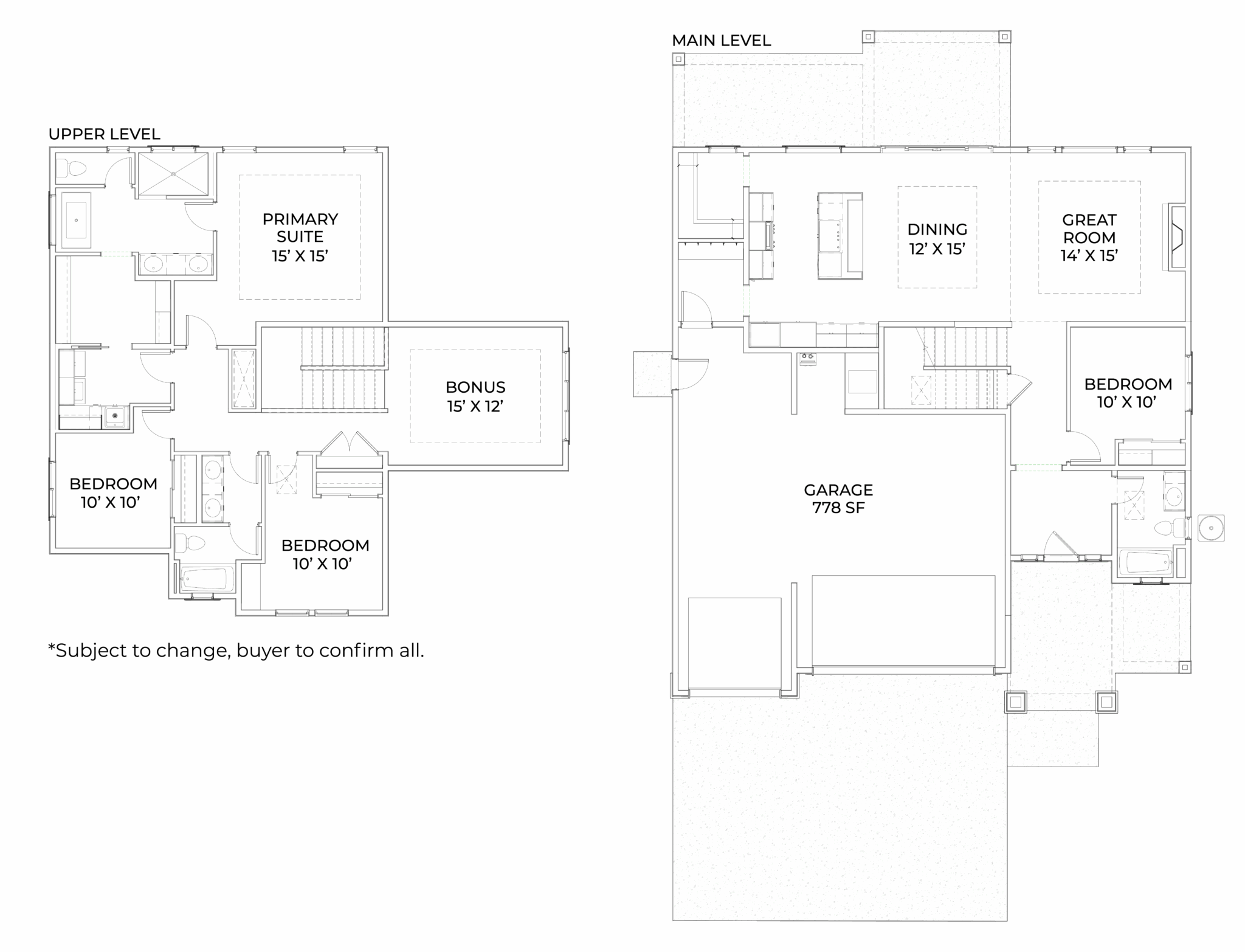
The Bruneau is a flexible two-story home with four bedrooms, three full bathrooms, and a thoughtful layout. Upstairs, three bedrooms sit near the laundry room and a spacious bonus room—ideal for a second living area or home office. A fourth bedroom and full bath on the main level offer extra flexibility for guests or multigenerational living. The open-concept great room flows into the kitchen and dining area, while a covered patio extends the living space outdoors. A three-car garage adds everyday convenience. The Bruneau is a functional and comfortable home built to adapt to your lifestyle.

4

Bedrooms

3

Bathrooms

3

Car Garage

~2,500

SQFT

https://alturashomes.com/wp-content/uploads/2024/12/cropped-4-Alturas-Symbol_Burnt-Orange.png

The Bruneau

Floor Plan

The Bruneau is a flexible two-story home with four bedrooms, three full bathrooms, and a thoughtful layout. Upstairs, three bedrooms sit near the laundry room and a spacious bonus room—ideal for a second living area or home office. A fourth bedroom and full bath on the main level offer extra flexibility for guests or multigenerational living. The open-concept great room flows into the kitchen and dining area, while a covered patio extends the living space outdoors. A three-car garage adds everyday convenience. The Bruneau is a functional and comfortable home built to adapt to your lifestyle.

4

Bedrooms

3

Bathrooms

3

Car Garage

~2,500

SQFT

4 Alturas Symbol_Tan

Virtual Tour

Discover the amazing flow and thoughtful design of The Bruneau using our virtual tour!

https://alturashomes.com/wp-content/uploads/2024/12/cropped-4-Alturas-Symbol_Burnt-Orange.png

Other floorplans

You Will Love!

The Hickory

Bedrooms 3
Bathrooms 2.5
Car Garage 3
Square Footage ~2,200
View Floor Plan

The Albion

Bedrooms 3
Bathrooms 2.5
Car Garage 3
Square Footage ~2,000
View Floor Plan

The Albion Bonus

Bedrooms 3
Bathrooms 3.5
Car Garage 3
Square Footage ~2,500
View Floor Plan

Love this Floor Plan?

Contact us to learn more!

https://alturashomes.com/wp-content/uploads/2024/12/cropped-4-Alturas-Symbol_Burnt-Orange.png

Contact Our Sales Team