48-56A7613
4 Alturas Symbol_Tan

The Bellevue

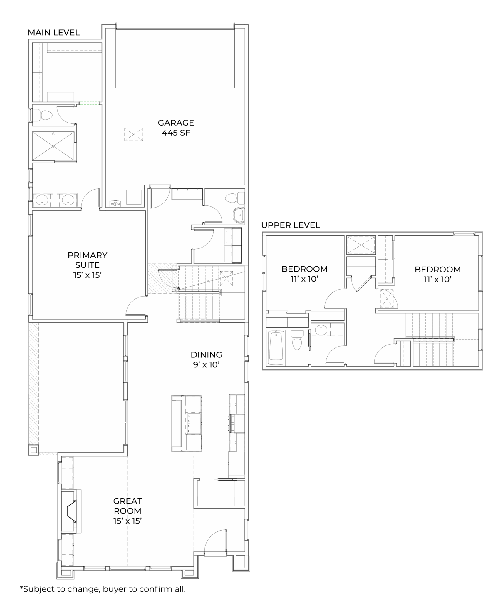
Introducing The Bellevue, a floor plan that emphasizes comfort, usability, and versatility. The main floor features an open-concept design, perfect for entertaining and everyday living, with the great room offering scenic views and seamless flow into the dining area and kitchen. Upstairs, two additional bedrooms and a shared bathroom provide a private and cozy retreat for family or guests. The spacious alley-load garage ensures easy access and maintains the home’s clean and welcoming curb appeal. Perfectly balancing style and practicality, The Bellevue is a wonderful place to call home.

3

Bedrooms

2.5

Bathrooms

2

Car Garage

~1900

SQFT

https://alturashomes.com/wp-content/uploads/2024/12/cropped-4-Alturas-Symbol_Burnt-Orange.png

The Bellevue

Floor Plan

Introducing The Bellevue, a floor plan that emphasizes comfort, usability, and versatility. The main floor features an open-concept design, perfect for entertaining and everyday living, with the great room offering scenic views and seamless flow into the dining area and kitchen. Upstairs, two additional bedrooms and a shared bathroom provide a private and cozy retreat for family or guests. The spacious alley-load garage ensures easy access and maintains the home’s clean and welcoming curb appeal. Perfectly balancing style and practicality, The Bellevue is a wonderful place to call home.

3

Bedrooms

2.5

Bathrooms

2

Car Garage

~1900

SQFT

https://alturashomes.com/wp-content/uploads/2024/12/cropped-4-Alturas-Symbol_Burnt-Orange.png

Home Photo Gallery

https://alturashomes.com/wp-content/uploads/2024/12/cropped-4-Alturas-Symbol_Burnt-Orange.png

Other floorplans

You Will Love!

The Carey

Bedrooms 3
Bathrooms 2.5
Car Garage 3
Square Footage ~2,000
View Floor Plan

The Palouse

Bedrooms 3
Bathrooms 2.5
Car Garage 2
Square Footage ~1,900
View Floor Plan

The Greyhawk

Bedrooms 3
Bathrooms 2.5
Car Garage 2
Square Footage ~1,900
View Floor Plan

Love this Floor Plan?

Contact us to learn more!

https://alturashomes.com/wp-content/uploads/2024/12/cropped-4-Alturas-Symbol_Burnt-Orange.png

Contact Our Sales Team