The-Bighorn-Floor-Plan-Flyer-scaled.jpg
4 Alturas Symbol_Tan

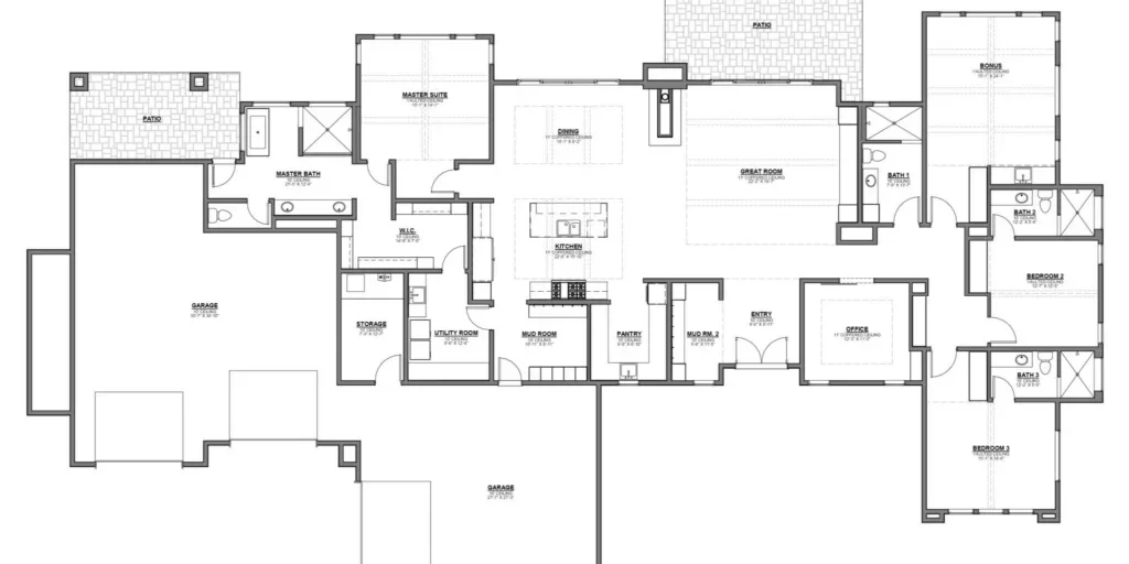
The Bighorn

The Bighorn at Tamarack Resort is a beautifully planned 3-bed, 4-bath home with 3,648 sq ft of elevated mountain living. Designed for both everyday life and entertaining, it features a flexible bonus room and a dedicated office — perfect for work, play, or second-home flexibility. An oversized boat bay keeps gear stored neatly between adventures, and the premium view lot showcases sweeping natural scenery right outside your door. With generous living spaces, thoughtful design, and resort-inspired touches throughout, the Bighorn offers comfort, versatility, and the best of Tamarack living.

3

Bedrooms

4

Bathrooms

3

Car Garage

3648

SQFT

https://alturashomes.com/wp-content/uploads/2024/12/cropped-4-Alturas-Symbol_Burnt-Orange.png

The Bighorn

Floor Plan

The Bighorn at Tamarack Resort is a beautifully planned 3-bed, 4-bath home with 3,648 sq ft of elevated mountain living. Designed for both everyday life and entertaining, it features a flexible bonus room and a dedicated office — perfect for work, play, or second-home flexibility. An oversized boat bay keeps gear stored neatly between adventures, and the premium view lot showcases sweeping natural scenery right outside your door. With generous living spaces, thoughtful design, and resort-inspired touches throughout, the Bighorn offers comfort, versatility, and the best of Tamarack living.

3

Bedrooms

4

Bathrooms

3

Car Garage

3648

SQFT

Inquire Today

Ready to start designing your custom home at Tamarack Resort? Fill out the form below to connect with our team and schedule a consultation. We’ll walk you through the process, answer your questions, and help you take the first step toward building your mountain retreat.