Timberline_Websize
4 Alturas Symbol_Tan

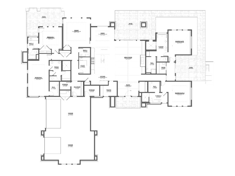
The Timberline

The Timberline at Tamarack Resort is a striking 4-bed, 4.5-bath home with 4,226 sq ft designed for unforgettable mountain living. With a flexible bonus room and dedicated bunk space, there’s room for family, guests, and fun. The oversized boat bay keeps gear organized and ready for adventure, while your private sauna and outdoor fireplace create inviting spaces to relax after a day on the slopes or the lake. Sited on a premier view lot, the Timberline captures sweeping natural scenery and brings the outdoors in, blending thoughtful design with elevated comfort for year-round resort living.

4

Bedrooms

4.5

Bathrooms

3

Car Garage

4226

SQFT

https://alturashomes.com/wp-content/uploads/2024/12/cropped-4-Alturas-Symbol_Burnt-Orange.png

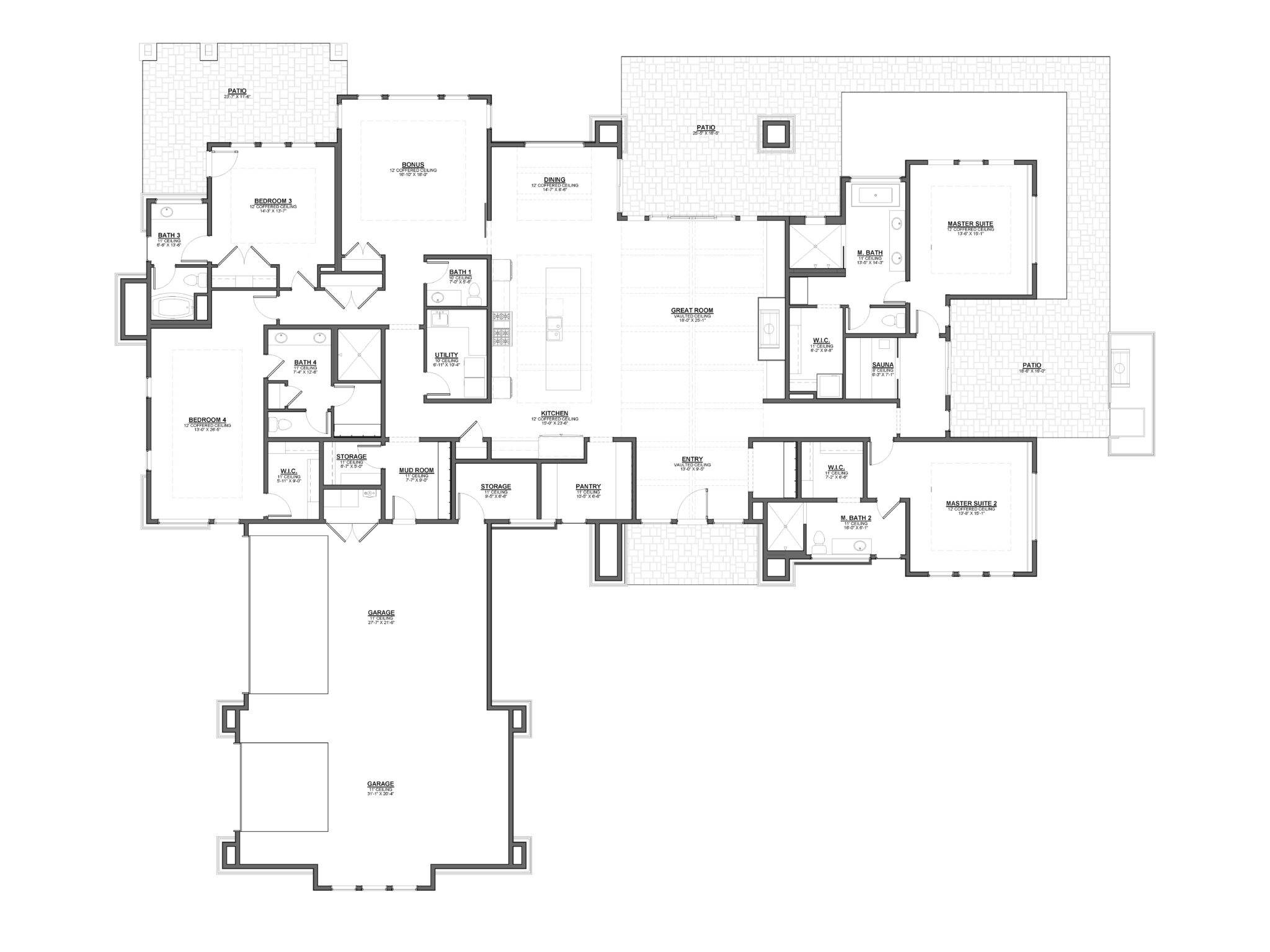
The Timberline

Floor Plan

The Timberline at Tamarack Resort is a striking 4-bed, 4.5-bath home with 4,226 sq ft designed for unforgettable mountain living. With a flexible bonus room and dedicated bunk space, there’s room for family, guests, and fun. The oversized boat bay keeps gear organized and ready for adventure, while your private sauna and outdoor fireplace create inviting spaces to relax after a day on the slopes or the lake. Sited on a premier view lot, the Timberline captures sweeping natural scenery and brings the outdoors in, blending thoughtful design with elevated comfort for year-round resort living.

4

Bedrooms

4.5

Bathrooms

3

Car Garage

4226

SQFT

https://alturashomes.com/wp-content/uploads/2024/12/cropped-4-Alturas-Symbol_Burnt-Orange.png

Home Photo Gallery

Inquire Today

Ready to start designing your custom home at Tamarack Resort? Fill out the form below to connect with our team and schedule a consultation. We’ll walk you through the process, answer your questions, and help you take the first step toward building your mountain retreat.