67-DJI_20241220144152_0313_D
4 Alturas Symbol_Tan

The Wildwood 4 Bedroom

72 Ponderosa Ridge Ct, Donnelly, ID 83615

Tamarack Ponderosa Lot 06 Block 19

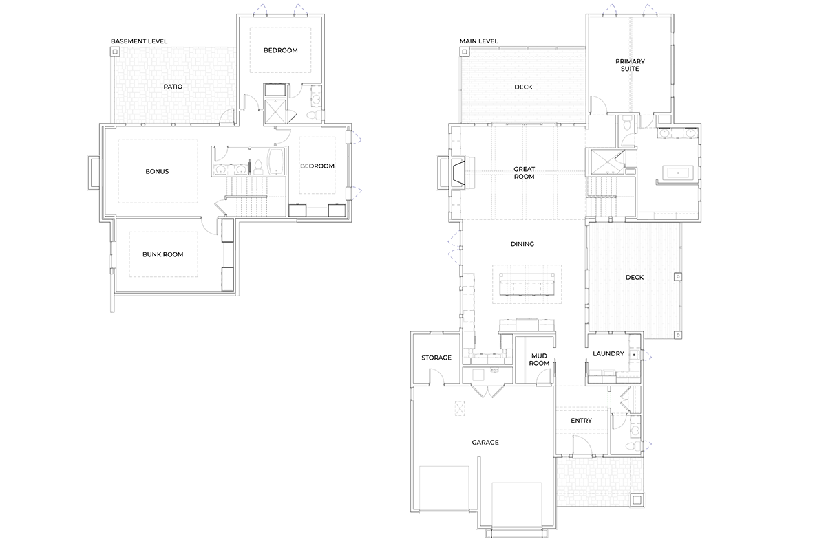
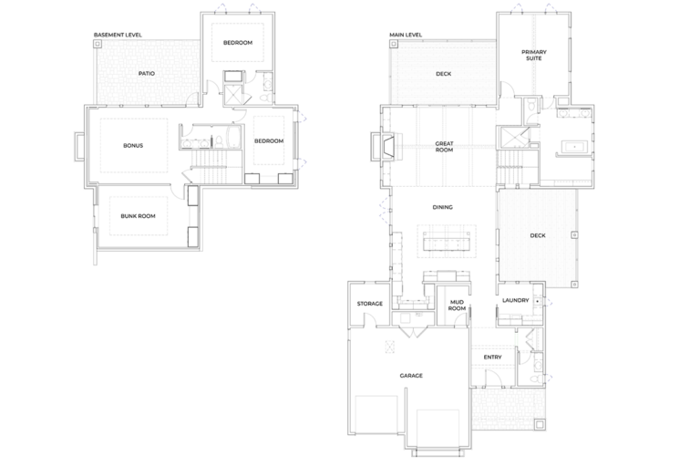
Located in the prestigious Ponderosa Ridge Villas at Tamarack Resort, this exquisite home offers over 3,500 square feet of luxury living with a perfect blend of rustic charm and refined elegance. Featuring 4 bedrooms, a bonus room, and 3.5 baths, the home is designed to harmonize with its natural surroundings through warm wood finishes, soaring ceilings, and expansive windows. Inside, rich wood tones and soft neutral finishes create an elevated cabin feel, while the serene, airy ambiance enhances the sense of tranquility. This thoughtfully designed retreat offers premium finishes and spacious outdoor areas, ideal for enjoying year-round mountain living.

4

Bedrooms

3.5

Bathrooms

2

Car Garage

3,551

SQFT

Property highlights

Listing Price

Lot Size (Acres)

0.26

Property Type

Two-Story

Community

Ponderosa Ridge Villas and Tamarack

Special Features

Bonus Room, Covered Patio, Thermador Appliances, and Vaulted Ceilings

https://alturashomes.com/wp-content/uploads/2024/12/cropped-4-Alturas-Symbol_Burnt-Orange.png

Home Photo Gallery

https://alturashomes.com/wp-content/uploads/2024/12/cropped-4-Alturas-Symbol_Burnt-Orange.png

The Wildwood 4 Bedroom

Floor Plan

Located in the prestigious Ponderosa Ridge Villas at Tamarack Resort, this exquisite home offers over 3,500 square feet of luxury living with a perfect blend of rustic charm and refined elegance. Featuring 4 bedrooms, a bonus room, and 3.5 baths, the home is designed to harmonize with its natural surroundings through warm wood finishes, soaring ceilings, and expansive windows. Inside, rich wood tones and soft neutral finishes create an elevated cabin feel, while the serene, airy ambiance enhances the sense of tranquility. This thoughtfully designed retreat offers premium finishes and spacious outdoor areas, ideal for enjoying year-round mountain living.

4

Bedrooms

3.5

Bathrooms

2

Car Garage

3,551

SQFT

Ready for Your Adventure?

Contact Tamarack Realty for more information.

Tamarack Realty, LLC

Proudly built in partnership with

Web-TamPrimaryHorizontal
Web-TamRealty