default
4 Alturas Symbol_Tan

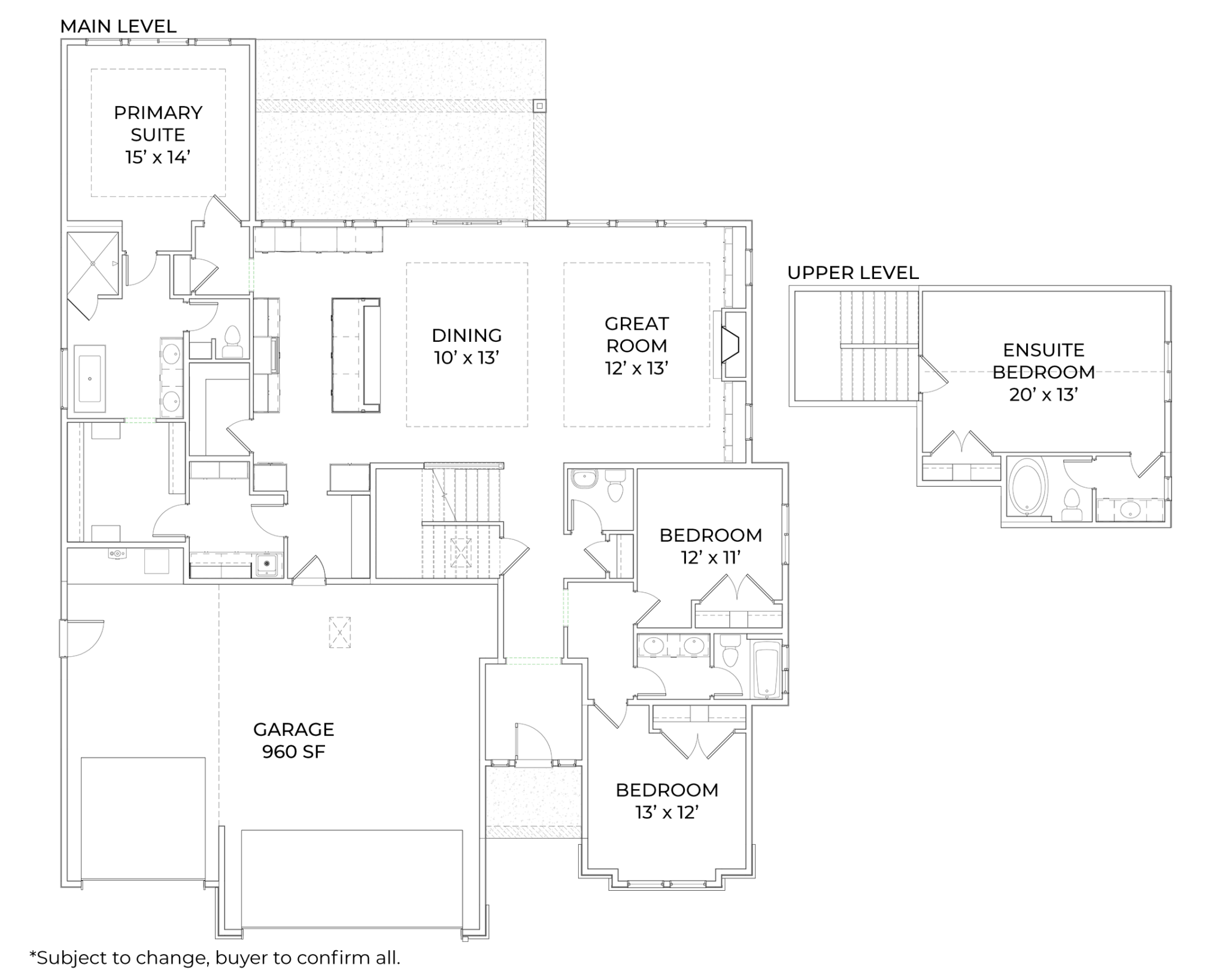
The Aspen Bonus

Welcome to the Aspen Bonus, a thoughtfully designed home offering four bedrooms and three and a half bathrooms, with a split-bedroom layout that enhances privacy and comfort. The upper bedroom includes its own full bathroom, making it ideal for guests, extended family, or a home office. Open-concept living spaces connect the kitchen, dining, and living areas, creating a warm and inviting atmosphere for everyday life and entertaining. A covered patio extends the home outdoors, offering a perfect retreat for relaxation or gatherings.

4

Bedrooms

3.5

Bathrooms

3

Car Garage

~2,800

SQFT

https://alturashomes.com/wp-content/uploads/2024/12/cropped-4-Alturas-Symbol_Burnt-Orange.png

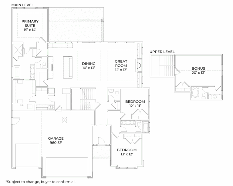
The Aspen Bonus

Floor Plan

Welcome to the Aspen Bonus, a thoughtfully designed home offering four bedrooms and three and a half bathrooms, with a split-bedroom layout that enhances privacy and comfort. The upper bedroom includes its own full bathroom, making it ideal for guests, extended family, or a home office. Open-concept living spaces connect the kitchen, dining, and living areas, creating a warm and inviting atmosphere for everyday life and entertaining. A covered patio extends the home outdoors, offering a perfect retreat for relaxation or gatherings.

4

Bedrooms

3.5

Bathrooms

3

Car Garage

~2,800

SQFT

4 Alturas Symbol_Tan

Virtual Tour

Discover the amazing flow and thoughtful design of The Aspen Bonus using our virtual tour!

4 Alturas Symbol_White

Available Homes Featuring

The Aspen Bonus

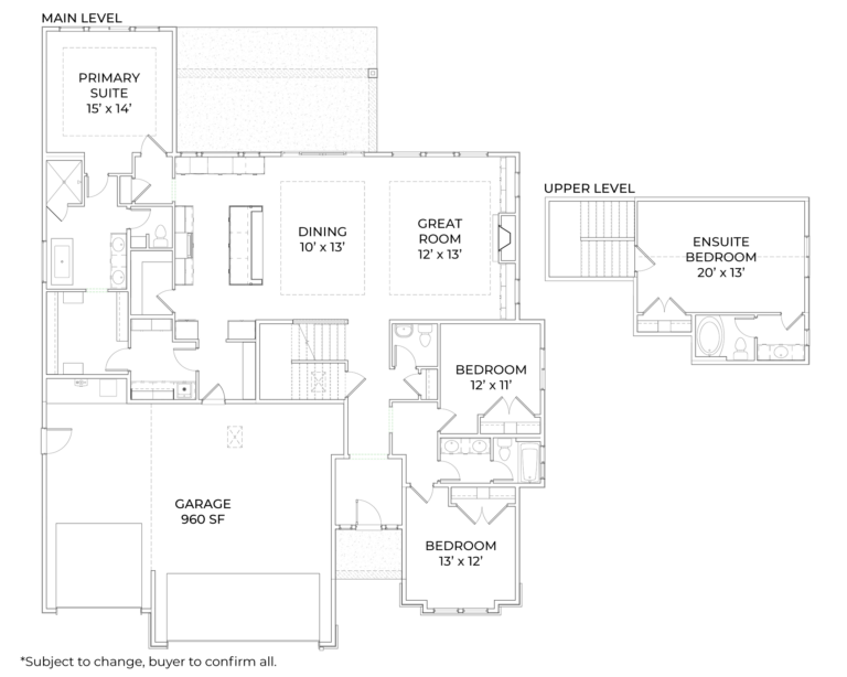
2653 E Cavern Dr
The Aspen Bonus Floor Plan
$874,900
Located in: Pinnacle Vertex
Bedrooms 4
Bathrooms 3.5
Car Garage 3
Square Footage 2,867
View Home
https://alturashomes.com/wp-content/uploads/2024/12/cropped-4-Alturas-Symbol_Burnt-Orange.png

Other floorplans

You Will Love!

The Latah

Bedrooms 4
Bathrooms 3.5
Car Garage 3
Square Footage ~2,900
View Floor Plan

The Lindsay Bonus

Bedrooms 3
Bathrooms 3.5
Car Garage 3
Square Footage ~2,600
View Floor Plan

The Clearwater

Bedrooms 3
Bathrooms 3
Car Garage 3
Square Footage ~2,800
View Floor Plan

Love this Floor Plan?

Contact us to learn more!

https://alturashomes.com/wp-content/uploads/2024/12/cropped-4-Alturas-Symbol_Burnt-Orange.png

Contact Our Sales Team