Front-Exterior-2-MLS
4 Alturas Symbol_Tan

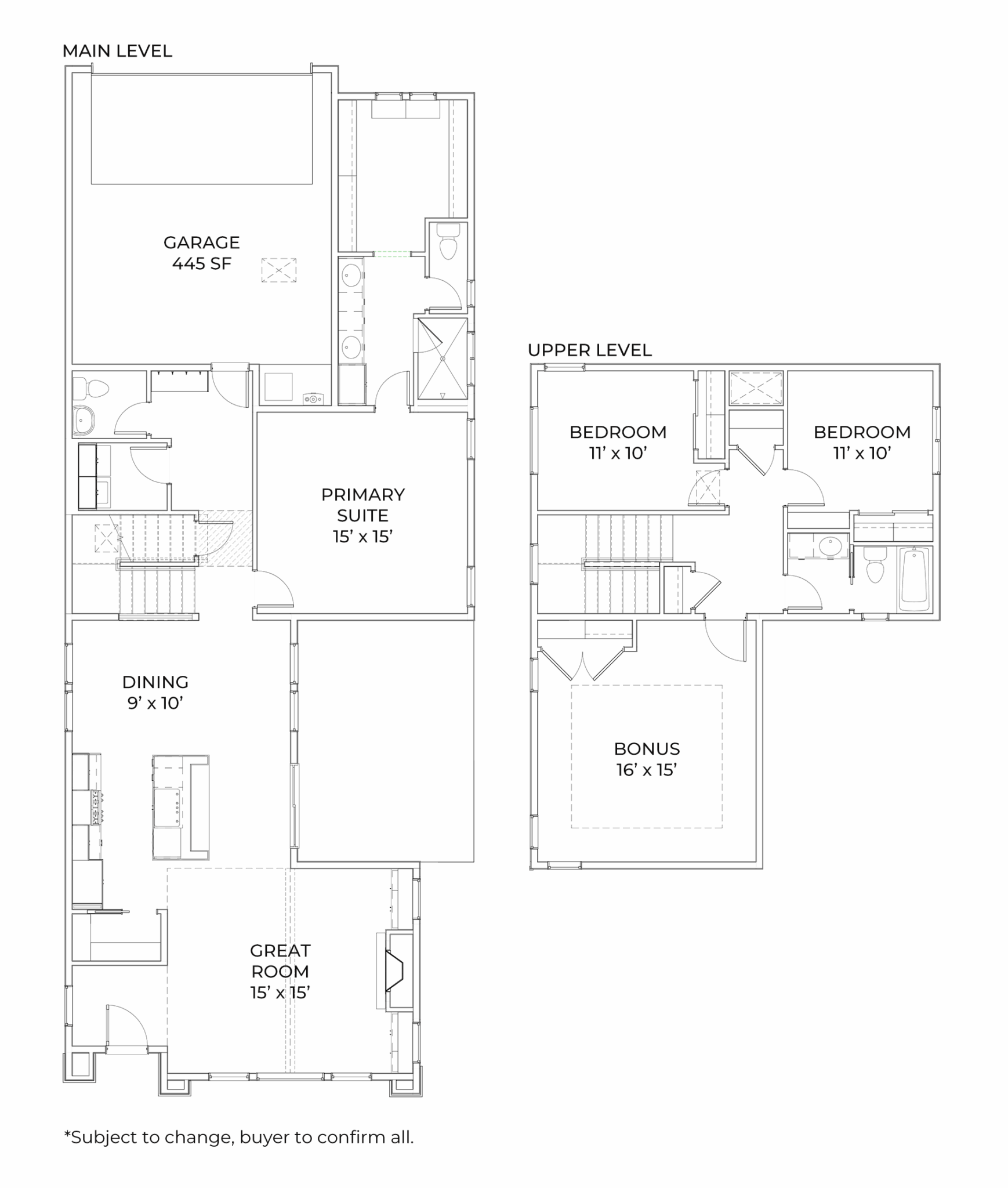
The Bellevue Bonus

The Bellevue Bonus is a two-story row home designed for modern living. The open-concept main floor connects the great room, dining area, and kitchen, creating a bright and inviting space for everyday living and entertaining. The primary suite is conveniently located on the main level. Upstairs, three additional bedrooms and a shared bathroom provide plenty of space, with one bedroom offering the flexibility to function as a bonus room, home office, playroom, or guest retreat. With an alley-load garage and a low-maintenance design, The Bellevue Bonus blends style, comfort, and practicality.

4

Bedrooms

2.5

Bathrooms

2

Car Garage

~2,260

SQFT

https://alturashomes.com/wp-content/uploads/2024/12/cropped-4-Alturas-Symbol_Burnt-Orange.png

The Bellevue Bonus

Floor Plan

The Bellevue Bonus is a two-story row home designed for modern living. The open-concept main floor connects the great room, dining area, and kitchen, creating a bright and inviting space for everyday living and entertaining. The primary suite is conveniently located on the main level. Upstairs, three additional bedrooms and a shared bathroom provide plenty of space, with one bedroom offering the flexibility to function as a bonus room, home office, playroom, or guest retreat. With an alley-load garage and a low-maintenance design, The Bellevue Bonus blends style, comfort, and practicality.

4

Bedrooms

2.5

Bathrooms

2

Car Garage

~2,260

SQFT

4 Alturas Symbol_Tan

Virtual Tour

Discover the amazing flow and thoughtful design of The Bellevue Bonus using our virtual tour!

4 Alturas Symbol_White

Available Homes Featuring

The Bellevue Bonus

1005 E Escalation St
The Bellevue Bonus Floor Plan
Located in: Pinnacle Northwest
Bedrooms 4
Bathrooms 2.5
Car Garage 2
Square Footage 2,373
View Home
https://alturashomes.com/wp-content/uploads/2024/12/cropped-4-Alturas-Symbol_Burnt-Orange.png

Other floorplans

You Will Love!

The Birch Bonus

Bedrooms 4
Bathrooms 3
Car Garage 3
Square Footage ~2,500
View Floor Plan

The Selway

Bedrooms 3
Bathrooms 2.5
Car Garage 2
Square Footage ~2,200
View Floor Plan

The Hawley

Bedrooms 3
Bathrooms 3
Car Garage 3
Square Footage ~2,300
View Floor Plan

Love this Floor Plan?

Contact us to learn more!

https://alturashomes.com/wp-content/uploads/2024/12/cropped-4-Alturas-Symbol_Burnt-Orange.png

Contact Our Sales Team